New Healthcare Access Points
The approved bond funds a number of access points including two new clinics—one in Horizon City and one at Raynolds and I-10, with a geriatric focus. These access points strengthen population health by connecting people to primary care where chronic disease can be identified and managed early, helping prevent avoidable hospitalizations and reduce long-term costs.
East Clinic Rehab
Current Phase
General Contractor RFP
Geriatric Health Center
Current Phase
Architectural Planning
Horizon Health Center & Emergency Department
Current Phase
Architectural Planning
West Emergency Department/ Urgent Care
Current Phase
Architectural Planning
West Ambulatory Surgical Center Operating & Procedure (Endoscopy) Rooms
Current Phase
Architectural Planning
Articles
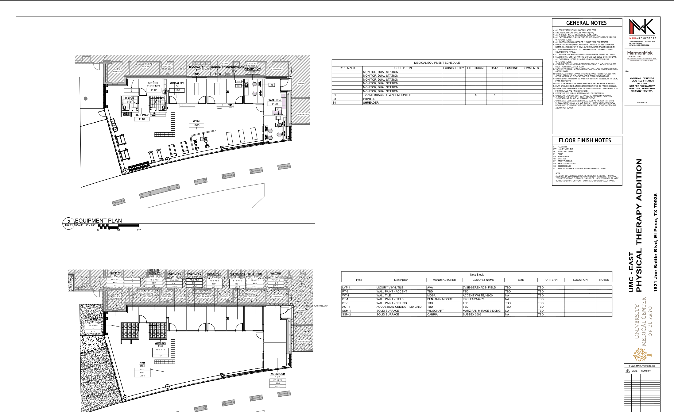
East Clinic Rehab
- Location: 1521 Joe Battle Blvd.
- Project Manager: Hammes Contract
executed October 2025 - Architect of Record MNK (Local) / Marmon Mok November 2025
- Design Complete: February 2026
Current Phase:
General Contractor RFP: February 2026

1. Architectural Planning

2. Schematic Design

3. Design Development

4. Construction Documents
5. General Contractor RFP

6. Construction
Related Articles
$198 Million and 5 Major Projects: UMC Off-Campus Expansion Update
University Medical Center of El Paso (UMC) is moving forward with several off-campus projects funded by the UMC...
East Clinic Rehab: Expanding Outpatient Rehabilitation Services
The University Medical Center of El Paso (UMC) is advancing the East Clinic Rehab project, located at 1521 Joe...
Geriatric Health Center
- Location: I-10 & Raynolds Street
- Project Manager: Hammes Contract executed October 2025
- Architect of Record Carl Daniel (Local) / Page Stantec Executed
November 2025
Current Phase:
Architectural Planning: February 2026
1. Architectural Planning

2. Schematic Design

3. Design Development

4. Construction Documents

5. General Contractor RFP

6. Construction
Related Articles
$198 Million and 5 Major Projects: UMC Off-Campus Expansion Update
University Medical Center of El Paso (UMC) is moving forward with several off-campus projects funded by the UMC...
Geriatric Health Center in Architectural Planning Phase
The University Medical Center of El Paso (UMC) is planning the Geriatric Health Center, an off-campus project...
Horizon Health Center & Emergency Department
- Location: Intersection of Eastlake Blvd & Kenazo Ave (25 acres)
- Land Acquisition: Closed December 19, 2025
- Project Manager: Hammes Contract executed October 2025
- Architect of Record Grace Design Studio / ASA (Local) November 2025
Current Phase:
Architectural Planning: February 2026
1. Architectural Planning

2. Schematic Design

3. Design Development

4. Construction Documents

5. General Contractor RFP

6. Construction
Related Articles
$198 Million and 5 Major Projects: UMC Off-Campus Expansion Update
University Medical Center of El Paso (UMC) is moving forward with several off-campus projects funded by the UMC...
Horizon Health Center & Emergency Department
The Horizon Health Center & Emergency Department is a planned healthcare development located at the...
West Emergency Department/ Urgent Care
- Location: 6600 N Desert Blvd.
- Project Manager: Hammes Contract executed October 2025
- Architect of Record: Carl Daniel (Local) / Page Stantec Executed
November 2025
Current Phase:
Architectural Planning: February 2026
1. Architectural Planning

2. Schematic Design

3. Design Development

4. Construction Documents

5. General Contractor RFP

6. Construction
Related Articles
$198 Million and 5 Major Projects: UMC Off-Campus Expansion Update
University Medical Center of El Paso (UMC) is moving forward with several off-campus projects funded by the UMC...
West Emergency Department / Urgent Care in Architectural Planning
The West Emergency Department / Urgent Care is a centrally located healthcare project planned for 6600 N Desert...
West Ambulatory Surgical Center Operating & Procedure (Endoscopy)
Rooms
- Location: Resler Drive & Canyon Creek (Private Drive) 5.16 acres
- Land Acquisition: Closed on January 6, 2026
- Project Manager: Hammes Contract executed October 2025
- Architect of Record: Carl Daniel (Local) / Page Stantec Executed
November 2025
Current Phase:
Architectural Planning: February 2026
1. Architectural Planning

2. Schematic Design

3. Design Development

4. Construction Documents

5. General Contractor RFP

6. Construction
Related Articles
$198 Million and 5 Major Projects: UMC Off-Campus Expansion Update
University Medical Center of El Paso (UMC) is moving forward with several off-campus projects funded by the UMC...











